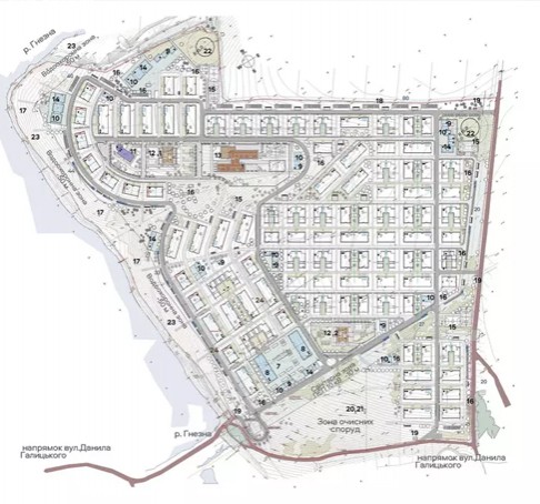
Під Збаражем Тернопільської області зведуть тимчасове поселення на 5500 переселенців.
Про це пише видання “20 хвилин“.
Містечко матиме розвинену інфраструктуру й передбачатиме робочі місця для переселенців. На території працюватимуть магазини, заклади харчування, дитсадки й початкова школа. Біля річки облаштують зону для відпочинку.
Проєкт реалізують з ініціативи й за підтримки Made in Ukraine, МБФ «Українська сім’я», міського голови Збаража й тернопільських підприємців.
“Наша команда вже розробила схему генплану поселення. Зараз ініціатори проєкту шукають фінансових партнерів і експертів із благоустрою території”,- інформують на сторінці студії дизайну у Фейсбук.





